Mierniki
wilgotności potokowe MICRORADAR - 113Ê-2 MICRORADAR - 113Ê-4
Mikrofalowe
bezinwazyjne mierniki wilgotności potokowe MICRORADAR - 113Ê-2 oraz MICRORADAR - 113Ê-4 można
zastosować do pomiaru wilgotności wytłoczyn
suszonych Urządzenia
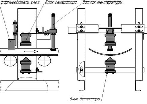
są przeznaczone do pracy na przenośnikach taśmowych w warunkach
wysokich temperatur i stężenia pyłu, w warunkach wysokiej
ścierności, agresywności materiału oraz
skłonności do przylepiania się. Zasada działania
mierników wilgotności polega na pomiarze wartości
wchłaniania energii
bardzo
wysokiej częstotliwości przez materiał wilgotny oraz
przetworzeniu tej wartości w kod cyfrowy, odpowiadający
wilgotności materiału. Mierniki wilgotności zapewniają
automatyczne korygowanie wyników pomiarów przy zachodzących
zmianach temperatury materiału, są wyposażone w wyjście
elektryczne oraz sekwencyjny kanał łączności z komputerem
RS-485.
Sygnał
czujników sensorycznych jest przekazywany do mikroprocesorowego bloku
przetwarzania, gdzie dokonuje się obliczenie wilgotności.
Wartość wilgotności wyświetla się na wyświetlaczu
bloku mikroprocesorowego oraz przekształca się w wyjścia
analogowe 4-20 mA i 0-2.5 V. Za pośrednictwem kanału
łączności RS485 wartość wilgotności, temperatury
i sygnały czujników sensorycznych można przekazać do
komputera. Zestaw dostarczany urządzenia zawiera program
umożliwiający gromadzenie i wyświetlanie wartości
wilgotności w czasie rzeczywistym, pozwala to, obserwować,
przechowywać oraz drukować informację dotyczącą
wilgotności z dowolnego okresu czasowego.

Podstawowe parametry metrologiczne
Zakres pomiaru wilgotności . . . . . 0,1-3%
|
Błąd . . 0,15 %abs.
|
Zakres pomiaru wilgotności . . . . . 3-15%
|
Błąd . . 0,5 %abs.
|
Zakres pomiaru wilgotności . . . . . 15-30%
|
Błąd . . 0,75 %abs.
|
Podstawowe
parametry techniczne
Zunifikowane wyjście analogowe (do wyboru)
|
Prąd (4 … 20; 0-5; 0-20) mA
|
Obciążalność
wyjścia elektrycznego, Om
|
< 500
|
Kanał łączności z komputerem
|
RS-485
|
Czas ustawienia trybu roboczego
|
Nie przekracza 20min.
|
Tryb pracy
|
Ciągły
|
Napięcie zasilające
|
~220 V, ~110 V,~24 V
|
Moc pobierana
|
Nie przekracza 50 V*À
|
Wymiary gabarytowe bloku przetwarzania (BSK)
|
255 õ 180 õ 90 mm
|
Waga bloku przetwarzania
|
Nie przekracza 1,0 kg
|
Wymiary gabarytowe bloku wyświetlacza (BW)
|
130 õ 130 õ 75 mm
|
Waga bloku wyświetlacza (BW)
|
Nie przekracza 0,5 kg
|
Odległość BSK – BW
|
Nie przekracza 300 m
|
Wykonanie obudowy bloków
|
IP54
|
Okres gwarancji 12 miesięcy.